氯堿廠的副產氫氣作為燃氣熔鹽爐的燃料介紹
相關產品:
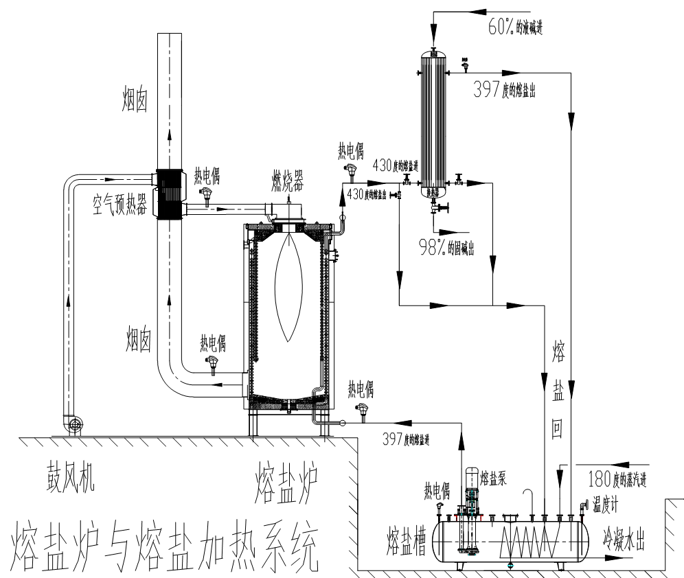
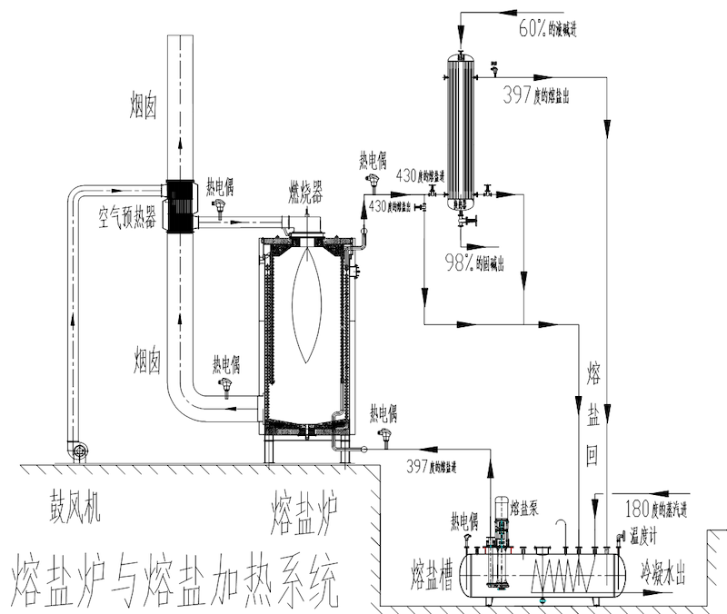
氯堿廠電解食鹽水過程中產生的副產氫氣,?純度約為98.5%?,含有少量氯氣、氧氣、水蒸氣等雜質,經適當凈化處理后,?完全可用于熔鹽爐的燃料,燃燒供熱?,為固堿(片堿)蒸發、濃縮等工藝提供固堿蒸發濃縮所需的430℃高溫熱源,? 既實現了資源循環利用,又提升了能源效率,是典型的綠色化工實踐。
常州市上能鍋爐有限公司專注生產制造燃氫氣熔鹽爐,聯系電話:13815029577

一、具體來看:
1.?副產氫氣來源可靠?
氯堿生產每噸燒堿可副產約280 Nm3氫氣,純度超過99%,僅需簡單提純即可作為清潔燃料使用 。
2.?氫氣燃燒可滿足熔鹽爐溫度需求?
燃氣熔鹽爐的工作溫度范圍為150℃~580℃,完全可達到固堿濃縮所需的430℃工藝溫度 。以氫氣為燃料時,燃燒產物為水蒸氣,無碳排放,環保性優于燃煤或重油。
3.?系統可實現閉環運行?
熔鹽在濃縮器釋放熱量后降溫至約400℃,回流至熔鹽槽,再由熔鹽泵送回加熱爐重新升溫,形成閉路循環系統 。利用氫氣燃燒供熱,可精準控制熔鹽出口溫度,保障工藝穩定性。
4.?安全與控制需重點管理?
氫氣易燃易爆,需配備嚴格的泄漏檢測、自動切斷和通風系統;同時熔鹽在高溫下具強氧化性,需防止氫氣-熔鹽接觸引發風險 。建議采用PLC全自動控制,實現±1℃溫控精度,確保安全穩定運行 。
二、關鍵技術與應用現狀

1.?燃燒溫度匹配?:熔鹽爐通常以硝酸鹽混合物(53% KNO3、7%NaNO3和40%NaNO2)為傳熱介質,工作溫度范圍在 ?150–580℃?,其中 ?430℃? 屬于常見運行區間,適用于固堿蒸發、濃縮等工序 ?。
2.?氫氣燃燒特性?:氫氣熱值高(約142 MJ/kg),燃燒火焰溫度可達 ?2000℃以上?,但通過與天然氣混合燃燒或調節摻燒比例,可實現對熔鹽爐出口溫度(如430℃)的精準控制 ?。
3.?實際工程案例?:山東昌邑海能化學有限責任公司 于2025年完成熔鹽爐燃氣系統改造,將副產氫氣引入片堿裝置熔鹽爐,實現 ?氫氣混燃比例達800 Nm3/h?,成功穩定運行在所需溫度區間,并實現 ?節能39.3%、年減排CO? 3800噸? ?。
?氫氣使用方式與優勢
a.?直接利用富余氫氣?:無需額外制氫設施,利用現有電解工序副產氫,降低能源浪費與安全排放風險 ?。
b.?摻燒或替代天然氣?:氫氣可作為主燃料,天然氣為輔助,實現靈活調峰;當氫氣摻入量 ≥500 Nm3/h 時,系統進入經濟運行區間 ?。
??環保與經濟效益顯著?:
a.噸產品天然氣單耗降低 ?24.5%?
b.片堿裝置負荷率提升 ?12%?
c.優級品率提高至 ?99.9%? ?
注意事項
1.氫氣需進行 ?脫氯、脫氧等預處理?,以避免腐蝕設備或影響燃燒穩定性。
2.熔鹽爐燃燒器需適配氫氣特性(如火焰速度、燃點),采用 ?分層燃燒或混合燃燒器設計? 可提升安全性與。
3.綜上,?氯堿廠副產氫氣用于熔鹽爐燃燒、產生430℃熱源供固堿蒸發濃縮,在技術上可行、工程上常州市上能鍋爐有限公司已有成功實踐,且具備顯著的節能降碳效益?。
三、典型應用場景
?副產氫回收利用?:氯堿廠、石化企業將生產過程中產生的副產氫用于鍋爐供熱,變廢為寶
聯系人:常州市上能鍋爐有限公司 芮經理 13815029577
關注本公司產品信息,網站:www.czsngl.com, m.tqzxx.cn www.czrsgl.com
返回頂部
掃一掃 關注我們