列管式換熱器
相關產品:
產品名稱:列管式換熱器
換熱面積:5M2 -200M2
工作壓力:4Mpa以內
材 質:Q345R/S30408
結構形式:臥式
換熱方式:換熱冷卻
介 質:液體或氣體

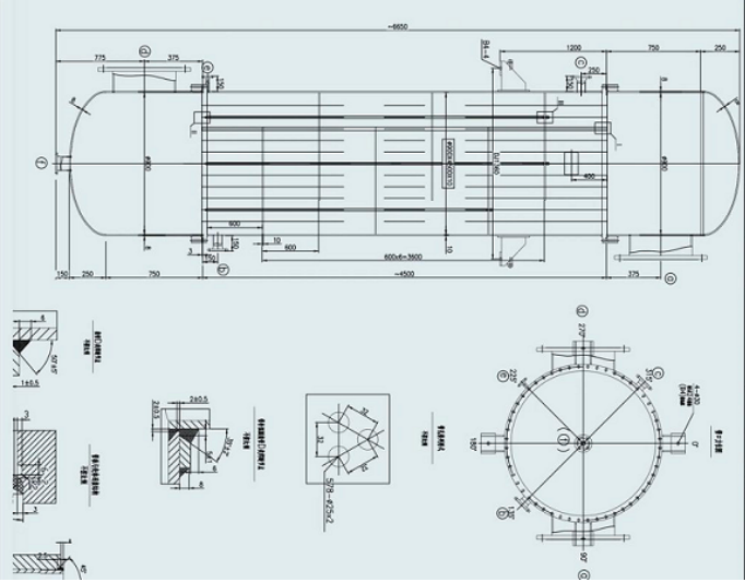
①核心結構
列管式換熱器由以下部件組成:
1.?殼體?:圓筒形結構,容納管束和殼程流體
2.?管束?:多根平行排列的換熱管,構成主要傳熱面
3.?管板?:帶孔圓板,固定管束并分隔管程/殼程
4.?折流擋板?:垂直安裝的圓缺形或圓盤形板,增強殼程流體湍流
5.?封頭?:位于殼體兩端,控制流體分配?
②工作原理
采用間壁式換熱:
6.管程流體:在換熱管內流動
7.殼程流體:在管束與殼體間流動
8.熱量通過管壁從高溫側傳遞到低溫側
9.折流擋板迫使流體多次橫掠管束,強化傳熱


④主要功能
1. 實現兩種流體間的熱量交換
2. 通過折流擋板提高傳熱效率
3. 管板結構確保管程/殼程流體不混合?
⑤.列管式換熱器廣泛應用于化工、石油、電力、食品加工等領域,主要用于熱交換、廢熱回收、流體加熱等場景。
主要應用領域
l 化工行業:用于反應器冷卻、蒸餾塔再沸器、廢熱回收等。例如在合成氨生產中調節溫度,提升能源效率 。 ?
l 石油煉化:用于原油加熱、油品冷卻、氣體冷凝。如催化裂化裝置中回收高溫反應油氣的熱量 。 ?
l 電力行業:鍋爐給水預熱、凝汽器冷卻。某火電廠通過換熱器將給水溫度從105℃提升至250℃,降低煤耗 。 ?
l 食品加工:牛奶巴氏殺菌、果汁濃縮。某乳企通過換熱器實現殺菌溫度波動±0.3℃,降低能耗 。
返回頂部
掃一掃 關注我們